Bilocale in vendita

Bagnolo Piemonte, Via del Pret - Montoso
€ 26.000
Prezzo aggiornato
2 locali 2 locali
50 Mq 50 Mq
1 bagno 1 bagno

Bilocale in vendita

Bagnolo Piemonte, Via del Pret - Montoso

Descrizione annuncio

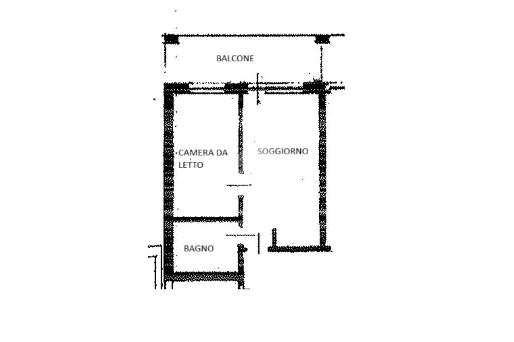
BAGNOLO PIEMONTE in Località Montoso, alloggio al secondo piano con vista panoramica.

L'immobile è composto da soggiorno con angolo cottura con uscita esterna sul terrazzino da cui si gode di una vista panoramica sulla valle.

E' presente una camera da letto matrimoniale e un bagno dotato di doccia.

L'immobile è completo di skibox.

Il riscaldamento è centralizzato con valvole.

Mostra tutto

Nelle vicinanze

Bar Bar
Hostaria dei Borghi
860 m
Ristoranti Ristoranti
Snow Bar
1,5 Km
Mostra tutto

Caratteristiche

Rif.:
61111372
Piano:
2 di 4 (Piano medio)
Posti auto:
1
Balconi:
1
Terrazzi:
1
Camere da letto:
1
Mostra tutto
Prezzo Prezzo
€ 26.000
Rata mutuo Rata mutuo
€ 123 / mese
Proponi il tuo prezzoProponi il tuo prezzo

Classe Energetica

G
G
G
G
G
G
G
G
G
EP invernale del fabbricato:
EP estiva del fabbricato:
Anno di costruzione:
1980
Riscaldamento:
Centralizzato
Tipo impianto:
A radiatori
Tipo alimentazione:
Metano

Prezzo ridotto di €1 (14%%)

Ti interessa visionare l'immobile?

Fissa un appuntamento  Fissa un appuntamento

Richiedi informazioni

Clicca su Leggi per aprire l'informativa
* Questi campi sono obbligatori

Calcola il tuo mutuo

Semplice e senza impegno
Anticipo

( % )
Mutuo

( % )

pochi semplici passi

inserisci i tuoi dati
Questionario completato
Grazie per aver richiesto un appuntamento senza impegno con un nostro Consulente del Credito e Assicurativo.

Hai inserito correttamente tutti i dati necessari e a breve riceverai una e-mail con un link da convalidare per inviare i tuoi dati.
Affiliato
Immobiliare Infernotto Sas
Via Luigi Einaudi, 5 12031 Bagnolo Piemonte (CN)

Il nostro staff


  • Giorgia Capellino
    Affiliata

  • Victoria Ferrato
    Coordinatrice

  • Matteo Giordanino
    Responsabile

  • Costanzo Luca Vignolo
    Collaboratore

  • Umberto Barvero
    Affiliato
Via Luigi Einaudi, 5 12031 Bagnolo Piemonte (CN)
Zona: Bagnolo Piemonte
Mostra su mappa
Orari: 9:00 - 12:30 14:30 - 19:30
Affiliato
Immobiliare Infernotto Sas
Via Luigi Einaudi, 5 12031 Bagnolo Piemonte (CN)

2026 Tecnocasa Franchising S.p.A. - P. IVA 08365160152 - Via Monte Bianco 60/A 20089 Rozzano (MI). Ogni agenzia ha un proprio titolare ed è autonoma. Privacy policy | Policy utilizzo | Cookie policy