Bilocale in vendita

Barge, Via Cuneo - Crocera Di Barge
€ 22.000
2 locali 2 locali
55 Mq 55 Mq
1 bagno 1 bagno

Bilocale in vendita

Barge, Via Cuneo - Crocera Di Barge

Descrizione annuncio

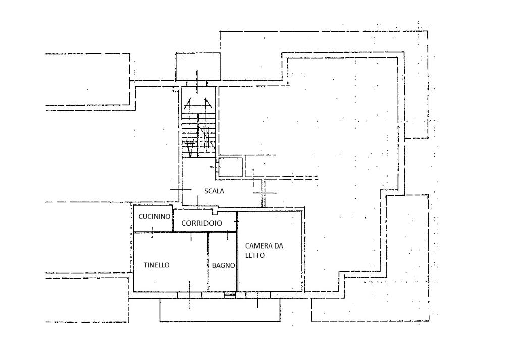
BARGE in Via Cuneo 17, località Crocera, proponiamo un alloggio situato al piano basso di un edificio dotato di ascensore, l'immobile si estende su una superficie di 55 mq.

La disposizione interna comprende due locali ben distribuiti: una camera da letto accogliente e un’altra stanza, ideale per essere utilizzata come soggiorno.

Un corridoio collega gli ambienti della casa, conducendo a un funzionale cucinino.

Il bagno è funzionale e ben tenuto.

L’appartamento dispone inoltre di un balcone, ideale per momenti di relax all’aperto.

Con un'aggiunta di prezzo si può acquistare un box auto singolo.

Mostra tutto

Caratteristiche

Rif.:
61132471
Piano:
1 di 4 con ascensore (Piano basso)
Posti auto:
1
Balconi:
1
Camere da letto:
1
Arredamento:
Completo
Mostra tutto
Prezzo Prezzo
€ 22.000
Rata mutuo Rata mutuo
€ 104 / mese
Spese annue Spese annue
€ 1.200
Proponi il tuo prezzoProponi il tuo prezzo

Classe Energetica

G
G
G
G
G
G
G
G
G
EP globale non rinnovabile:
152.30 kW h/m² anno
EP globale rinnovabile:
14.08 kW h/m² anno
EP invernale del fabbricato:
EP estiva del fabbricato:
Anno di costruzione:
1970
Riscaldamento:
Centralizzato
Tipo impianto:
A radiatori
Tipo alimentazione:
Altro

Ti interessa visionare l'immobile?

Fissa un appuntamento  Fissa un appuntamento

Richiedi informazioni

Clicca su Leggi per aprire l'informativa
* Questi campi sono obbligatori

Calcola il tuo mutuo

Semplice e senza impegno
Anticipo

( % )
Mutuo

( % )

pochi semplici passi

inserisci i tuoi dati
Questionario completato
Grazie per aver richiesto un appuntamento senza impegno con un nostro Consulente del Credito e Assicurativo.

Hai inserito correttamente tutti i dati necessari e a breve riceverai una e-mail con un link da convalidare per inviare i tuoi dati.
Affiliato
Immobiliare Infernotto Sas
Via Luigi Einaudi, 5 12031 Bagnolo Piemonte (CN)

Il nostro staff


  • Giorgia Capellino
    Affiliata

  • Matteo Giordanino
    Responsabile

  • Costanzo Luca Vignolo
    Collaboratore

  • Umberto Barvero
    Affiliato
Via Luigi Einaudi, 5 12031 Bagnolo Piemonte (CN)
Zona: Bagnolo Piemonte
Mostra su mappa
Orari: 9:00 - 12:30 14:30 - 19:30
Affiliato
Immobiliare Infernotto Sas
Via Luigi Einaudi, 5 12031 Bagnolo Piemonte (CN)

2025 Tecnocasa Franchising S.p.A. - P. IVA 08365160152 - Via Monte Bianco 60/A 20089 Rozzano (MI). Ogni agenzia ha un proprio titolare ed è autonoma. Privacy policy | Policy utilizzo | Cookie policy