Bilocale in vendita

Barge, Via Carle Costanzo
€ 100.000
2 locali 2 locali
60 Mq 60 Mq
1 bagno 1 bagno

Bilocale in vendita

Barge, Via Carle Costanzo

Descrizione annuncio

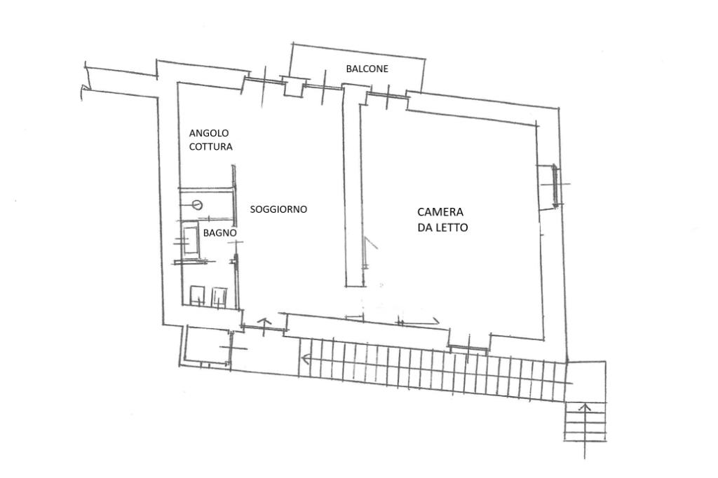
BARGE, in Via Carle Costanzo, in una delle zone più comode e servite del paese, proponiamo in vendita un bilocale situato all’interno di una palazzina oggetto di completa e radicale ristrutturazione.

L’edificio si presenta in perfette condizioni generali sia per quanto riguarda le parti comuni e l'appartamento.

L’immobile, posto in una posizione tranquilla ma a breve distanza dai servizi, si apre su un’accogliente zona giorno composta da soggiorno con angolo cottura.

L’ambiente risulta particolarmente accogliente, rendendo lo spazio ideale per vivere momenti di relax o per organizzare un area pranzo.

La camera da letto matrimoniale, anch’essa di generose dimensioni, offre un’atmosfera calda e confortevole, perfetta per chi desidera un ambiente riservato.
Il bagno è molto funzionale e dotato di finiture moderne.

Completa la proprietà un comodo balcone, ideale per godere di un piacevole spazio esterno con vista aperta sul contesto circostante.

Mostra tutto

Nelle vicinanze

Scuole Scuole
Scuole
490 m
Farmacia Farmacia
Antica Farmacia Dottor Giugleur
240 m
Farmacia
260 m
Supermercati Supermercati
Ok Market
290 m
Maxisconto
1,6 Km
Negozi Negozi
Daniela & Mary
350 m
Ristoranti Ristoranti
El Sacocin
80 m
Pizzeria del Castello
90 m
Trattoria del Giardino
1,6 Km
Trattoria San Martino
1,9 Km
Mostra tutto

Caratteristiche

Rif.:
61147437
Piano:
2 di 2 (ultimo Piano)
Balconi:
1
Camere da letto:
1
Arredamento:
Assente
Condizionamento:
Assente
Mostra tutto
Prezzo Prezzo
€ 100.000
Rata mutuo Rata mutuo
€ 474 / mese
Spese annue Spese annue
€ 0
Proponi il tuo prezzoProponi il tuo prezzo

Classe Energetica

D
D
D
D
D
D
D
D
D
EP invernale del fabbricato:
EP estiva del fabbricato:
Anno di costruzione:
2025
Riscaldamento:
Autonomo
Tipo impianto:
A radiatori
Tipo alimentazione:
Metano

Ti interessa visionare l'immobile?

Fissa un appuntamento  Fissa un appuntamento

Richiedi informazioni

Clicca su Leggi per aprire l'informativa
* Questi campi sono obbligatori

Calcola il tuo mutuo

Semplice e senza impegno
Anticipo

( % )
Mutuo

( % )

pochi semplici passi

inserisci i tuoi dati
Questionario completato
Grazie per aver richiesto un appuntamento senza impegno con un nostro Consulente del Credito e Assicurativo.

Hai inserito correttamente tutti i dati necessari e a breve riceverai una e-mail con un link da convalidare per inviare i tuoi dati.
Affiliato
Immobiliare Infernotto Sas
Via Luigi Einaudi, 5 12031 Bagnolo Piemonte (CN)

Il nostro staff


  • Giorgia Capellino
    Affiliata

  • Victoria Ferrato
    Coordinatrice

  • Matteo Giordanino
    Responsabile

  • Costanzo Luca Vignolo
    Collaboratore

  • Umberto Barvero
    Affiliato
Via Luigi Einaudi, 5 12031 Bagnolo Piemonte (CN)
Zona: Bagnolo Piemonte - Barge
Mostra su mappa
Orari: 9:00 - 12:30 14:30 - 19:30
Affiliato
Immobiliare Infernotto Sas
Via Luigi Einaudi, 5 12031 Bagnolo Piemonte (CN)

2026 Tecnocasa Franchising S.p.A. - P. IVA 08365160152 - Via Monte Bianco 60/A 20089 Rozzano (MI). Ogni agenzia ha un proprio titolare ed è autonoma. Privacy policy | Policy utilizzo | Cookie policy