Casa semindipendente in vendita

Barge, Via Lungaserra
€ 55.000
5 locali 5 locali
100 Mq 100 Mq
1 bagno 1 bagno

Casa semindipendente in vendita

Barge, Via Lungaserra

Descrizione annuncio

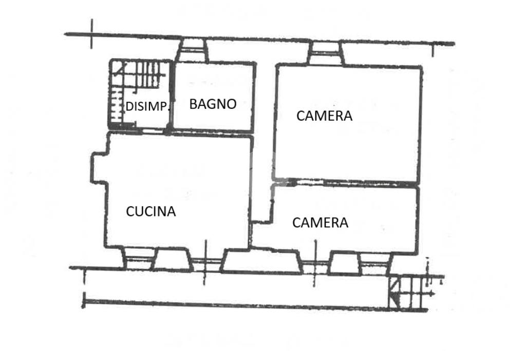
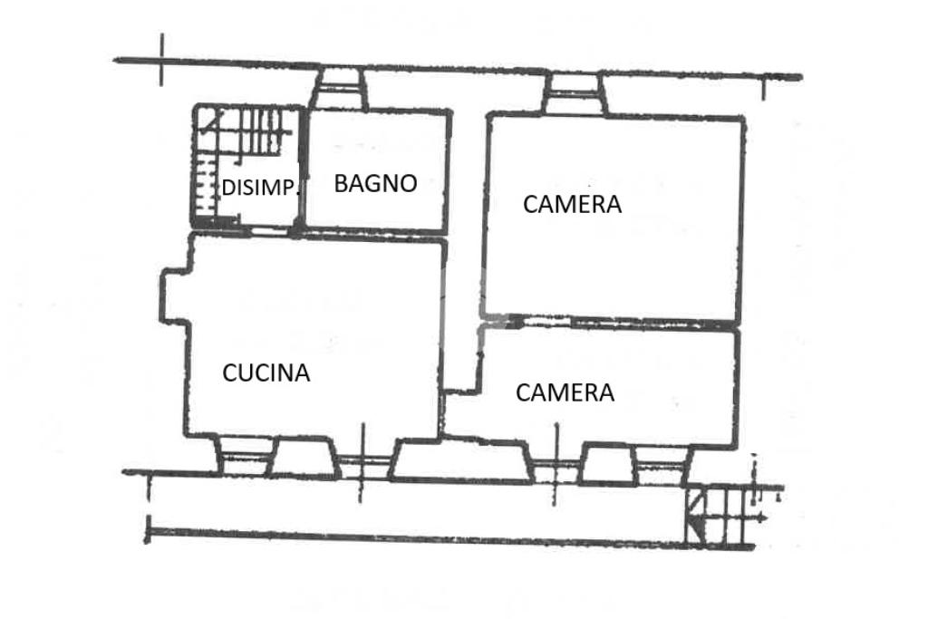
BARGE in Via Lungaserra, proponiamo in vendita una casa semindipendente di 100 mq, ideale per chi cerca una soluzione abitativa su più livelli.

Al piano terra, l'ingresso si apre su una cucina accogliente, affiancata da un bagno e due camere da cui si può ricavare un soggiorno o una camera da letto.

Salendo al primo piano, si trovano altre due camere, di cui una utilizzabile come locale di sgombero, ideale per chi necessita di spazio aggiuntivo.

La proprietà è completata da un balcone che offre una piacevole vista sul giardino privato, un angolo verde dove rilassarsi all'aria aperta.

Posto auto a disposizione, garantendo comodità e praticità.

Mostra tutto

Nelle vicinanze

Ristoranti Ristoranti
Locanda della trappa
2,2 Km
Mostra tutto

Caratteristiche

Rif.:
61161370
Piano:
1 di 1 (Piano su più livelli)
Box:
1
Posti auto:
1
Balconi:
1
Camere da letto:
1
Mostra tutto
Prezzo Prezzo
€ 55.000
Rata mutuo Rata mutuo
€ 261 / mese
Spese annue Spese annue
€ 0
Proponi il tuo prezzoProponi il tuo prezzo

Classe Energetica

G
G
G
G
G
G
G
G
G
EP invernale del fabbricato:
EP estiva del fabbricato:
Anno di costruzione:
1930
Riscaldamento:
Autonomo
Tipo impianto:
A radiatori
Tipo alimentazione:
Metano

Ti interessa visionare l'immobile?

Fissa un appuntamento  Fissa un appuntamento

Richiedi informazioni

Clicca su Leggi per aprire l'informativa
* Questi campi sono obbligatori

Calcola il tuo mutuo

Semplice e senza impegno
Anticipo

( % )
Mutuo

( % )

pochi semplici passi

inserisci i tuoi dati
Questionario completato
Grazie per aver richiesto un appuntamento senza impegno con un nostro Consulente del Credito e Assicurativo.

Hai inserito correttamente tutti i dati necessari e a breve riceverai una e-mail con un link da convalidare per inviare i tuoi dati.
Affiliato
Immobiliare Infernotto Sas
Via Luigi Einaudi, 5 12031 Bagnolo Piemonte (CN)

Il nostro staff


  • Giorgia Capellino
    Affiliata

  • Victoria Ferrato
    Coordinatrice

  • Matteo Giordanino
    Responsabile

  • Costanzo Luca Vignolo
    Collaboratore

  • Umberto Barvero
    Affiliato
Via Luigi Einaudi, 5 12031 Bagnolo Piemonte (CN)
Zona: Bagnolo Piemonte - Barge
Mostra su mappa
Orari: 9:00 - 12:30 14:30 - 19:30
Affiliato
Immobiliare Infernotto Sas
Via Luigi Einaudi, 5 12031 Bagnolo Piemonte (CN)

2026 Tecnocasa Franchising S.p.A. - P. IVA 08365160152 - Via Monte Bianco 60/A 20089 Rozzano (MI). Ogni agenzia ha un proprio titolare ed è autonoma. Privacy policy | Policy utilizzo | Cookie policy